- 壓力變送器系列
- 通用型壓力變送器
- 工業型壓力變送器
- 衛生型壓力變送器
- 數顯型壓力變送器
- 高溫型壓力變送器
- 差壓型壓力變送器
- 潛水型壓力變送器
- 經濟型壓力變送器
- 智能型壓力變送器
- 高壓型壓力變送器
- 壓縮機專用壓力變送器
- 差壓變送器系列
- 智能壓力變送器
- 智能絕對壓力變送器
- 智能差壓變送器
- 智能微差壓變送器
- 智能高靜壓差壓變送器
- 智能單法蘭液位變送器
- 智能單法蘭插入式液位變送器
- 智能遠傳差壓變送器
- 智能遠傳插入式差壓變送器
- 智能遠傳壓力變送器
SLK220工業溫度變送器

產品概述
SLK220工業溫度變送器是利用鉑電阻的阻值隨溫度變化而變化,且呈一定函數關系的特性來測量被測介質的溫度。變送器采用高精度的熱電偶、熱電阻作為檢測元件,用高穩定性電路進行信號處理,實現溫度連續測量,輸出工業控制標準信號,同時可以實現顯示,遠傳等功能。產品測溫部分采用全不銹鋼一體化加工技術,接線盒選用2088鋁殼,產品具有抗震能力強、熱響應快等特點;導線采用專用屏蔽導線,使用溫度范圍寬;該產品安裝方便,適用于溫度測量的各種自動化控制系統中。
產品特點
1、抗振動
2、高強度、抗高壓
3、一體化結構,接線盒內安裝了放大和線性化處理的變送模塊
4、帶顯示可選
5、安裝方便,能長期穩定工作
6、響應快
7、多種連接
8、方式,多種輸出信號可按客戶要求定制
性能參數
適用范圍
設備配套、石油、化工、電力、輕紡、環保等領域中對水或油的溫度測量;泵及壓縮機、天然氣管網等自動化溫度測控系統…
外形結構及接線方式
SLK220工業溫度變送器是利用鉑電阻的阻值隨溫度變化而變化,且呈一定函數關系的特性來測量被測介質的溫度。變送器采用高精度的熱電偶、熱電阻作為檢測元件,用高穩定性電路進行信號處理,實現溫度連續測量,輸出工業控制標準信號,同時可以實現顯示,遠傳等功能。產品測溫部分采用全不銹鋼一體化加工技術,接線盒選用2088鋁殼,產品具有抗震能力強、熱響應快等特點;導線采用專用屏蔽導線,使用溫度范圍寬;該產品安裝方便,適用于溫度測量的各種自動化控制系統中。
產品特點
1、抗振動
2、高強度、抗高壓
3、一體化結構,接線盒內安裝了放大和線性化處理的變送模塊
4、帶顯示可選
5、安裝方便,能長期穩定工作
6、響應快
7、多種連接
8、方式,多種輸出信號可按客戶要求定制
性能參數
| 量程范圍 | -50℃~250℃ |
| 供電電源 | 24V |
| 輸出信號 | 4~20mA |
| 精度 | 0.5級 |
| 敏感元件 | Pt100 |
| 絕緣強度 | 100MΩ/250VDC |
| 長期穩定性 | ≤0.2%FS/年 |
| 熱響應時間 | ≤30s |
| 溫度漂移 | ±0.2%FS/℃ |
| 置入直徑 | Φ12(特殊要求可協商) |
| 防爆等級 | 本安防爆ExiaⅡCT6 |
| 外殼防護 | IP65 |
| 電氣連接 | 一體化結構不銹鋼殼體,特殊可定制。 |
|
工作環境 |
(1)環境溫度:-40~85℃ |
| (2)相對濕度:0~95%RH | |
| (3)機械振動:f≤55HZ,振幅<0.15mm | |
| (4)消耗功率:<0.5W |
設備配套、石油、化工、電力、輕紡、環保等領域中對水或油的溫度測量;泵及壓縮機、天然氣管網等自動化溫度測控系統…
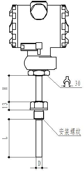
外形結構及接線方式
| 尺寸圖(單位:mm) | 接線方式 |
![]() |
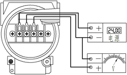
![]() 二線制電流 ![]() 三線制電壓 |
| 注:L為插入深度;D為溫包直徑,常規為φ12;H為散熱長度,一般為150mm;特殊可定制。 | |
訂購指南
| 產品名稱 | ||||||||||
| SLK220工業溫度變送器 | ||||||||||
| 量程范圍 | ||||||||||
| 0℃~200℃ (根據客戶要求直接填寫) | ||||||||||
| 電源 | ||||||||||
| V1:24V DC 、V2:12V DC | ||||||||||
| 輸出信號 | ||||||||||
| B1:4~20mA、B2:0~10V、B3:1~5V、B4:0~5V、 | ||||||||||
| 電氣連接 | ||||||||||
| J1:2088殼體、J2:2088殼體帶顯示 | ||||||||||
| 附加信息 | ||||||||||
| 安裝方式:A1:螺紋型、A2:法蘭型、 | ||||||||||
| 安裝尺寸:C1:M20×1.5、C2:DN25、 客戶可定制尺寸 | ||||||||||
| 桿徑:D1:6mm、D2:8mm、D3:10mm、D4:16mm | ||||||||||
| 插入深度:L30:30mm、L50:50mm、L75:75mm、L100:100mm、L150:150mm | ||||||||||
| P1:0.5%FS、P2:0.25%FS | ||||||||||
| SLK220 | 0~200℃ | V1 | B1 | A | A1C1D2L50P1 選型舉例:SLK220-0~200℃ -V1-B1-J2-A1-C1-D2-L50-P1 | |||||
▲選型說明
表示型號為SLK220、量程為0~200℃、供電電源24V、輸出信號4~20mA、電氣連接為2088殼體帶顯示、安裝方式為螺紋型、安裝尺寸大小為M20×1.5、桿徑大小為8mm、插入深度為50mm,精度為0.5級。
▲訂購提示
⑴ 插入深度為不含螺紋長度。
⑵ 帶顯示分為數碼管顯示和液晶顯示兩種,請在訂單中說明。
⑶ 若對產品外形和性能參數有特殊要求,本公司可提供定制。
產品信息歸西安仕樂克儀表科技有限公司版權所有
http://tzh-1.com/view-32-1.html
相關文章推薦:壓力變送器選取壓點應符合的幾個規定 壓力變送器的正負遷移 壓力變送器微調的具體操作步驟 供熱電廠壓力變送器工作原理 壓力開關與傳感器的設計了解 壓力變送器在冬季如何防凍保溫【儀表防凍通用 壓力變送器主要從哪些方面檢定技術 壓力變送器的正負遷移 智能壓力變送器的作用及特點 壓力變送器系列中的五大分類 常用壓力變送器的工作原理和特點 擴散硅壓力變送器在水位控制系統中的應用 壓力變送器主要作用 壓力變送器使用時需要注意哪些事項 如何延長壓力變送器的使用壽命
上一篇:鎧裝溫度變送器
下一篇:沒有了





